Linee di taglio
Linee di taglio longitudinale per bobine di lamiera
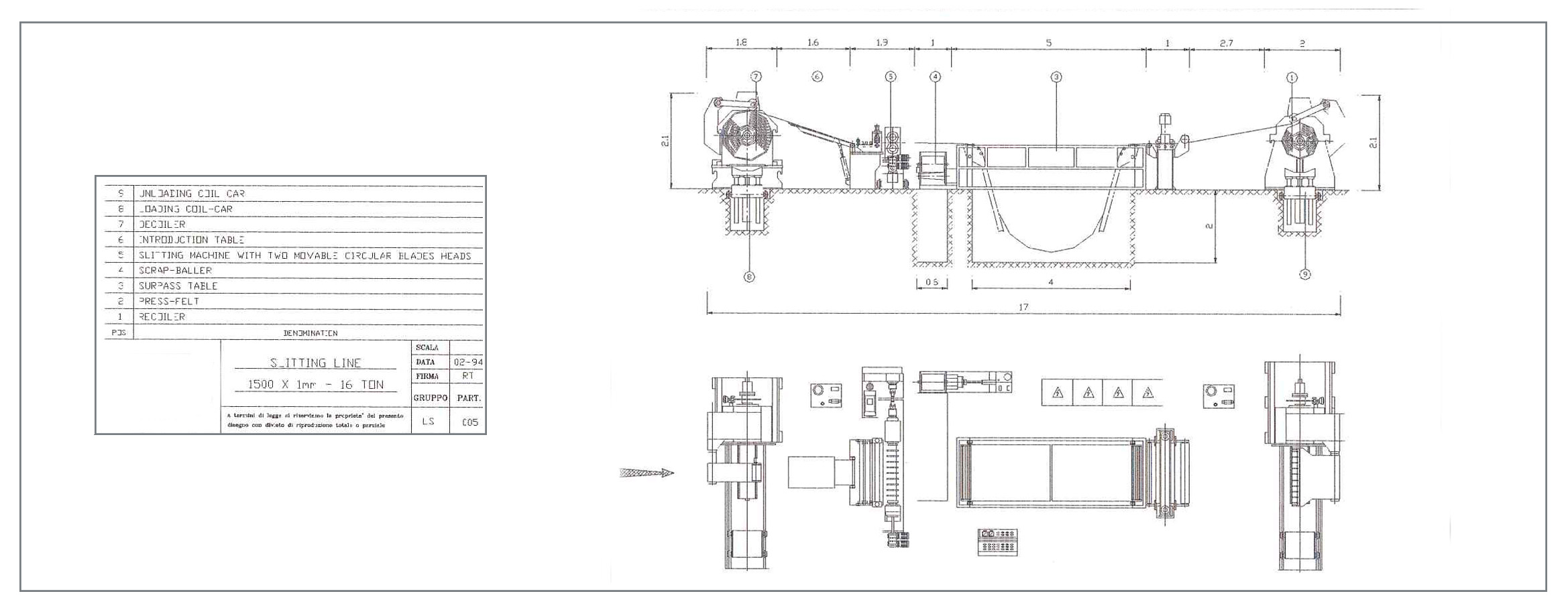
LINEA
TAGLIO LONGITUDINALE
Siamo costruttori dal 1972 di linee per il taglio longitudinale delle bobine di lamiera e possiamo fornire aspi svolgitori e selle di carico da 1000 mm, 1250 mm, 1500 mm, 2000 mm con portate fino a 30 ton. Le cesoie circolari e gli aspi avvolgitori sono equipaggiati sia con motori elettrici in c.c. controllati da convertitori digitali sia da motori elettrici in c.a. con inverter. Le linee possono essere dotate anche di sistema per cambio rapido della testa con le lame circolari per il cambio del formato di lavoro.

LAYOUT
TAGLIO LONGITUDINALE

Taglio longitudinale
Produzione

ASPO AVVOLGITORE 20 TON

LINEA SLITTER

LINEA DI TAGLIO LONGITUDINALE
Contattaci
Sabilmec
Via Garigliano, 5
65129 Pescara (PE)
65129 Pescara (PE)
Orario
Lun – Ven 9:00 – 17:30
Sab – Dom Chiuso
Sab – Dom Chiuso
Telefono
(+39) 0858624464